PRICE
$850
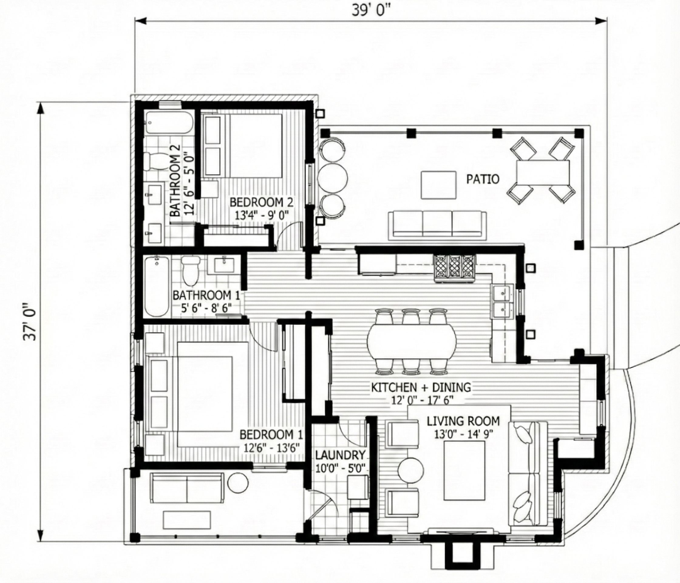
About Plan A652
| LIVING AREA:900 SQ FT | 2 BEDROOMs | 2.5 BATHs | CRAWL SPACE |
| CELLING HEIGHT 8′ | 32′ 0″ WIDTH | 34′ 10″ DEPTH | WALL: 2X6. 2X4 |

What’s IncludedWhat’s Included
- Floor Plans: Detailed layouts showing room sizes, wall locations, and overall flow of the home.
- Exterior Elevations: Front, rear, and side views that clearly illustrate the exterior design, materials, and proportions.
- Building Sections: Vertical cut-through views that explain ceiling heights, roof structure, and key construction details.
- Door & Window Schedule: Clear information on all doors and windows, including sizes and locations.
- Electrical & Lighting Plan: Layouts showing outlets, switches, lighting fixtures, and electrical planning.
- Roof Plan: Roof layout, slopes, and overall roof structure.
- Foundation Plan: Foundation layout and dimensions prepared for construction.
- Framing Plans: Structural framing layouts to guide the construction of floors, walls, and roof systems.
“Ready for permitting with local engineer review and stamping”

Simple Two-Step Purchase with Dedicated Architect Support
Step 1 – Initial Payment: $300
- A dedicated architect is assigned to your plan
- You receive personal support (not automated)
- Your plan is reviewed and delivered within 24 hours
Step 2 – Final Payment
- Complete the remaining balance once everything is confirmed
- The architect will deliver the plan, explain the details, and guide you through the final payment
✔ One clear point of contact
✔ Careful, professional handling
✔ Ongoing support for your project
Customize The Plan To Meet Specific Requirements
If you wish to customize a plan to better align with your requirements, please follow the process outlined below.
- Step 1: Send your modification request to support@avnhouseplans.com
- Step 2: We review your request and confirm feasibility
- Step 3: Pay the initial payment (50%)
- Step 4: Plan modification in progress
- Step 5: Final delivery & remaining balance payment











